Białystok Piaski, Jerzego Waszyngtona
845 000,00 PLN
Mieszkanie na sprzedaż , 84,70 m2
9 976,39 PLN /m2
Powierzchnia
84,70 m2
Liczba pokoi
7
Rok budowy
1978

Dane nieruchomości:

Numer oferty: MC814593
Powierzchnia: 84,70 m2
Liczba pokoi: 7
Piętro/Pięter 1 z 11
Rok budowy: 1978
Ogrzewanie: CO miejskie
Balkon : 1
Cena za m2: 9 976,39 PLN
Cena: 845 000,00 PLN

Opis nieruchomości:

Nieruchomość jest w stałym najmie, ROI na poziomie 8 % rocznie.
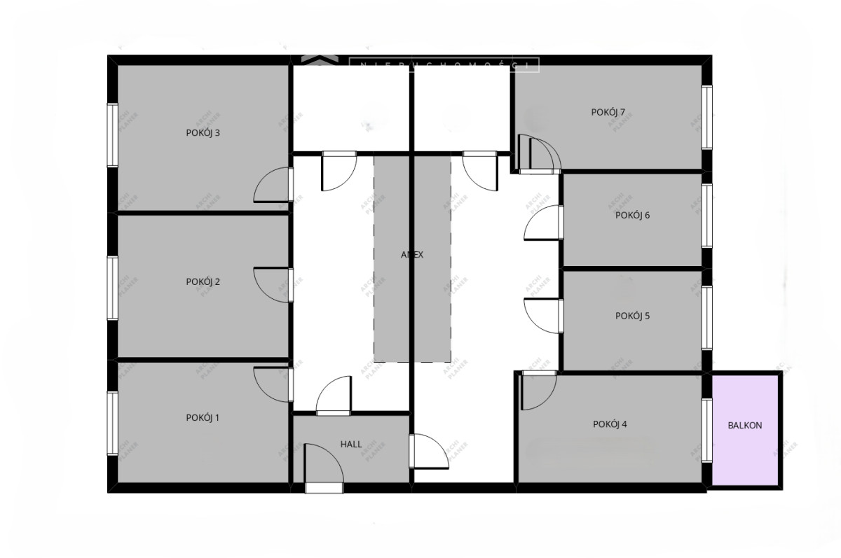
Inwestycyjne 7-pokojowe mieszanie w wysokim budynku przy ulicy Waszyngtona 22, położone na 1 piętrze z windą, na Osiedlu Piaski niemal w samym centrum Białegostoku.

Nieruchomość jest podzielona na 2 lokale z niezależnymi wejściami.
Mieszkanie nr 1 podzielone jest na 4 zamykane pokoje, aneks kuchenny i łazienkę.
Mieszkanie nr 2 podzielone jest na 3 zamykane pokoje, aneks kuchenny i łazienkę.

Mieszkanie jest dwustronne, ma powierzchnię 84,7 m2. Posiada balkon, piwnicę.
W roku 2019 przeszło gruntowny remont łącznie z wymianą instalacji elektrycznej i kanalizacyjnej.

Bezpłatne miejsca na parkingu przy samym budynku (szlaban na pilot tylko dla mieszkańców). W najbliższej odległości przystanki komunikacji miejskiej, UMB, Żabka, sklepy, apteka, restauracje, szpital, przychodnia rodzinna, fitness, kościół, szkoła.

Cena 845.000 PLN  Oferta dostępna wyłącznie w naszym biurze.
kontakt 660 890 555 MCKWADRAT Nieruchomości.
Licencja zawodowa pośrednika nr 23291.

Prezentowana oferta ma charakter informacyjny, nie stanowi oferty handlowej w rozumieniu Art. 66 par. 1 Kodeksu Cywilnego. Dokładamy starań, aby nasze oferty były rzetelnie sprawdzone i aktualne.
Niniejsze materiały stanowią własność przedsiębiorstwa MCKWADRAT Nieruchomości w rozumieniu ustawy z dnia 16 kwietnia 1993 r. o zwalczaniu nieuczciwej konkurencji (Dz. U. z 2003 r., Nr 153, poz. 1503 z późn. zm.).

Skontaktuj się z agentem :
Maciej Citko

Telefon : 660890555

maciej@mckwadrat.net


Lokalizacja: